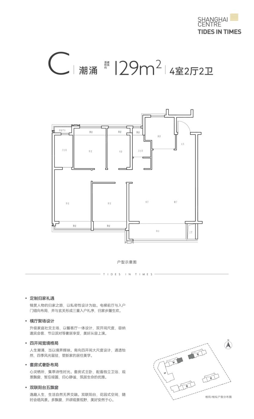
项目价值分析报告
9.4
综合评分
-
项目户型 9.2
-
交通配套 8.9
-
教育配套 9.8
-
生活配套 9.8
-
交通配套
在项目周边3公里范围内,便捷的交通网络让居民出行无忧,直线距离内设有2个地铁站(曹路、民雷路),最近的地铁站仅255米之遥。此外,周边1公里范围内设有14个公交站点,确保了公共交通的便利性。
-
教育配套
在教育方面,项目周边3公里范围内分布着15所幼儿园,以及5所小学,包括顾路中心小学、龚路中心小学西校区、上海市浦东新区曹路打一小学、顾路中心小学和龚路中心小学(东校区)。同时,周边3公里范围内还有6所中学,如上海市浦东复旦附中分校、上海市浦东模范中学东校、上海市顾路中学金钻校区、上海市顾路中学民冬校区和上海第二工业大学附属龚路中学(分校),为孩子们提供了丰富的教育资源。
-
生活配套
项目周边3公里范围内设有2家一级及以上医院,其中上海市浦东新区肺科医院距离项目2.6公里,确保了居民的医疗需求得到及时满足。此外,周边3公里范围内还有4个商场,包括恒越荣欣广场等购物中心,为居民提供了便利的购物环境。周边的生态环境同样优越,3公里范围内拥有13个公园,最近的公园仅1.1公里之遥,为居民提供了丰富的休闲和娱乐选择。
免费解锁分析报告
售楼处优惠活动
10月节日特惠
售楼部节日特惠活动已经正式启动
109人已参与
报名还剩11天
立即报名
免费专车接送
预约专车即可享免费专属座驾接送
272人已参与
报名还剩11天
立即报名
楼盘动态
了解更多楼盘详细
- 浦东新区房管(2023)预字0000436号
- 2023-12-27
- 住宅
- 浙江钱江房地产集团有限公司、宁波维科置业有限公司、杭州市城建开发集团有限公司
- 板楼
- 70年
- 2026-05-31
- 288
- 上海景浦湾置业有限公司
- 住宅3.9元/㎡/月
- 13587
- 27174
- 暂无信息
- 35%
- 2.00
- 待定
楼盘问答
全部问题-
了解了,谢谢你的解答。
-
16***62网上有很多网站可以查询楼盘信息,但信息不一定准确,最好亲自去现场看看,对比一下实际情况。总之购房需谨慎,毕竟这是人生大事。
向置业顾问咨询楼盘信息
周边配套
获取学区、交通、商业配套信息
楼盘点评
全部点评
152****2836
这家开发商挺靠谱的,交房时一般没有问题。房子的质量也很不错。

183****3611
这几个户型面积在87到97平之间,属于紧凑实用型,性价比确实不错。地段选得好,以后升值潜力不用太愁。区域规划也挺关键,这边的发展方向看起来挺靠谱,整体挺稳的。

181****469
绿化规划较为完善,对改善区域空气与湿度有一定帮助,居住舒适度有望提升。交房时间定于2026年5月31日,周期合理,整体进度尚可。最终体验仍需以实际建设质量为准。
我也要点评一下
为您推荐
了解更多免责声明
本网呈现的户型图为第三方提供的非标准的参考户型图或根据第三方提供的户型图通过系统/技术等手段生成的非标准的参考户型图,不应作为您交易的决策依据。户型图上呈现的户型、面积、朝向、内部结构、功能分区仅供展示参考,实际信息请以与开发商签订的商品房买卖合同为准。 详细请阅读 《重要风险提示》 。