项目价值分析报告
综合评分
-
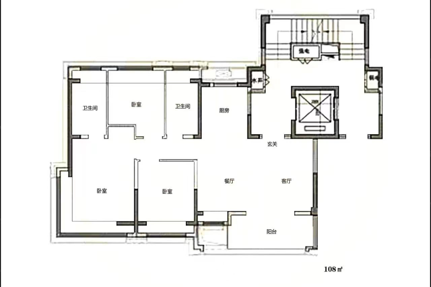
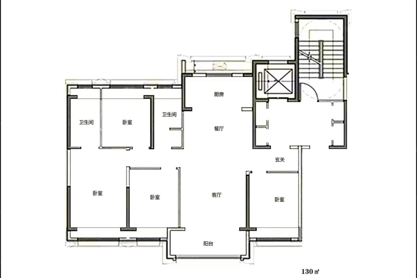
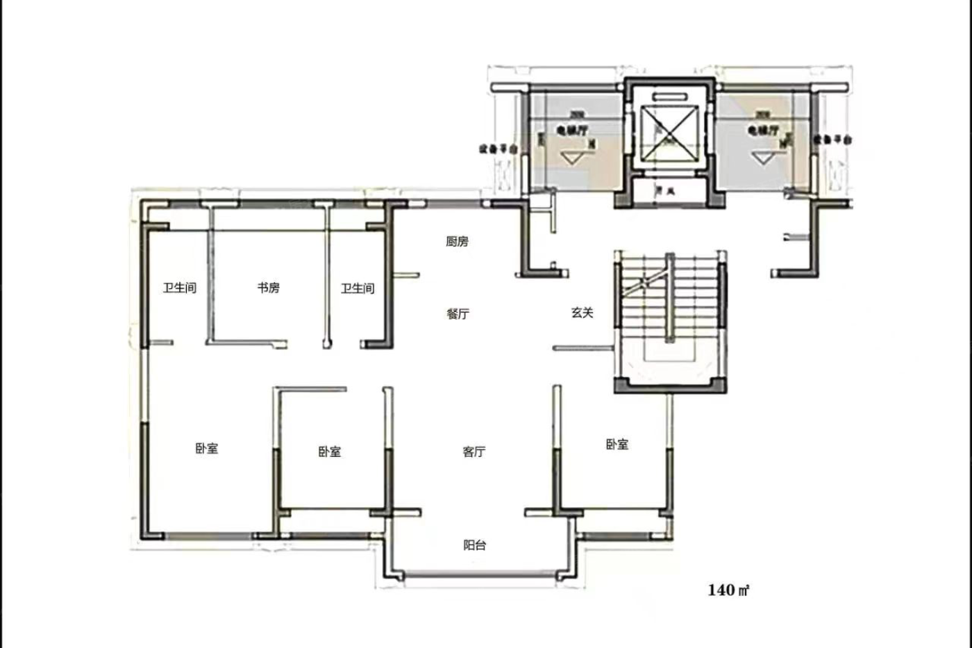
项目户型 9.6
-
交通配套 9.8
-
教育配套 9.9
-
生活配套 9.7
-
交通配套
在项目周边3公里范围内,分布着9个地铁站点,包括华夏中路、北中路、芳芯路、莲溪路、陈春路、张江高科、北蔡、中科路和芳华路,交通网络发达,最近的地铁站为华夏中路站。周边1公里内设有1个公交站点,即高科西路中界村站,距离约711米。
-
教育配套
在直线3公里范围内,共有24所幼儿园供选择。同时,该区域还拥有10所小学,其中包括御桥小学(高青校区)、筑桥实验小学、张江高科实验小学(藿香校区)、上海浦东新区民办鲁冰花小学和福山正达外国语小学(南校区)等知名学府。此外,该区域还设有12所中学,如华东师范大学第二附属中学、建平中学西校大唐校区、上海市北蔡中学北中校区、上海外国语大学附属浦东外国语学校和上海市华林中学等。
-
生活配套
项目周边医疗资源丰富,在3公里范围内设有7家一级及以上医院,包括上海中医药大学附属曙光医院(西北门)、上海中医药大学附属曙光医院(东院)门诊部和上海中医药大学附属曙光医院(东院),距离项目分别为1.5公里、1.6公里和1.7公里,确保居民的医疗需求得到满足。此外,周边3公里范围内还分布着10个购物中心,如佩玛福悦艺术生活中心、龙阳广场、绿地·缤纷广场、THEhood开新里和证大喜玛拉雅中心等,商业配套完善,充分满足日常购物需求。周边生态环境优越,3公里范围内有29个公园,最近的一个距离项目仅390米,方便居民进行日常休闲活动。
售楼处优惠活动
楼盘动态
了解更多楼盘详细
- 浦东新区房管(2024)预字0000291号
- 2024-10-18
- 住宅
- 上海京贸悦房地产开发有限公司
- 板楼
- 70年
- 911
- 国贸物业
- 暂无信息
- 44681
- 136000
- 1013个
- 35%
- 2.00
- 有装修
楼盘问答
全部问题-
17***43可以去一些房产网站查看相关信息,但最好亲自去看看,实地考察才能更直观地了解实际情况。总之购房需谨慎,毕竟这是大事。
周边配套
楼盘点评
全部点评


免责声明
本网呈现的户型图为第三方提供的非标准的参考户型图或根据第三方提供的户型图通过系统/技术等手段生成的非标准的参考户型图,不应作为您交易的决策依据。户型图上呈现的户型、面积、朝向、内部结构、功能分区仅供展示参考,实际信息请以与开发商签订的商品房买卖合同为准。 详细请阅读 《重要风险提示》 。